

Gallery North announces our campaign to build the
Terence Netter Creative Center
Gallery North is excited to announce its plans for the Terence Netter Creative Center, an all-new building on its campus which will add a second, larger project space for exhibitions, as well as a new café, a community art library, and an expansive new green space. It will provide artists with more opportunities to explore new creative possibilities and enhance Gallery North as a cultural meeting point where people can come together to enjoy art, exchange diverse ideas, and contribute to our community.

About Terence Netter
Terence Netter was an artist, teacher, philosopher, President of Gallery North, and a long-time resident of Setauket. He was also a visionary and a champion of the arts throughout his life, serving as the founding Director of the Staller Center for the Arts at Stony Brook University, and playing a central role in the creation of the Pollock-Krasner Study Center. Through his advocacy and leadership, Terence Netter not only inspired Gallery North to explore its role within the community but also challenged us to seek opportunities for growth.

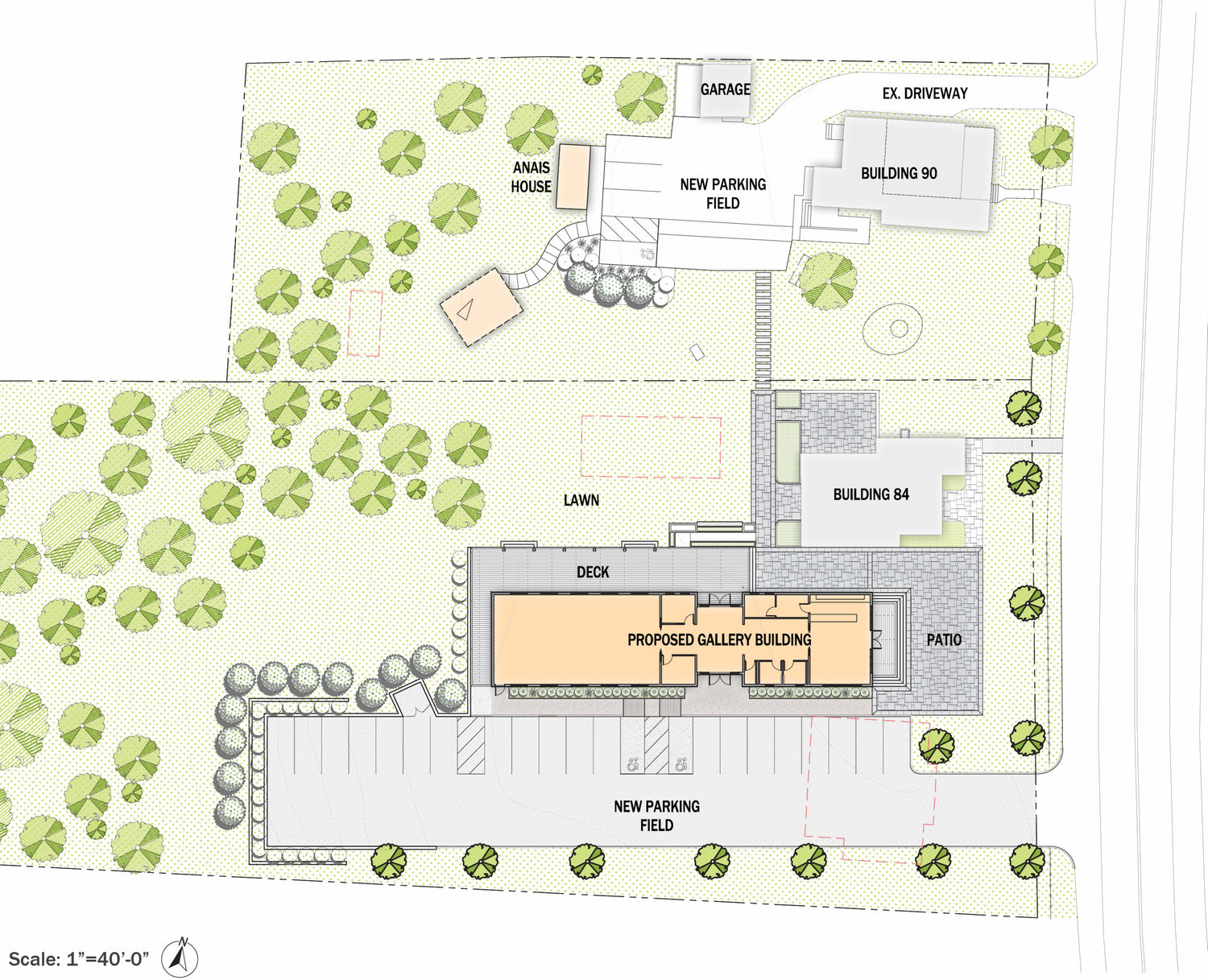
The Terence Netter Creative Center will add an expansive exhibition/project space to Gallery North’s campus, fulfilling an increasing need for space among emerging young artists in our local community and at Stony Brook University. The project space will increase our ability to give voice to the area’s diverse communities, and also allow Gallery North to host large school groups, expanding our outreach capabilities to underserved communities in the area.

The Terence Netter Creative Center will also feature a welcoming new café that will serve as a daily destination and invite community members to engage in Gallery North’s diverse programming.

Adjacent to the café, there will be a community art library, housing a significant collection of art books available to the public for learning, as well as information about Terence Netter, his life and his art. The new facility and our existing buildings will together define an expansive new green space for gatherings and relaxation.

The Terence Netter Creative Center will expand Gallery North’s campus and deepen its impact. It will be a space where community meets creativity, and will ensure that a new generation of artists has the resources it needs to, in Terence Netter’s words, “create their own vision of art.”

Streetview of our exciting new campus

Gallery North's Existing Campus

Gallery North's new campus showing the addition of the Terence Netter Creative Center. The Netter Center will be directly south of the Studio, at 82 North Country Road in Setauket (current location of the Creative Annex).


How YOU Can Help
In 2022, Gallery North began a $4.5 million capital campaign with two goals - to build the new Terence Netter Creative Center on its campus; and to make needed repairs and renovations to its 19th century gallery building.
Due to prudent planning and leadership support, Gallery North has now raised $3.15 million in capital support and was recently awarded grant funding totaling $750,000 from New York State and Suffolk County. As of today, we have raised $3,900,000 toward our goal of $4.5 million.
We now seek $600,000 in community support for the construction and opening of our new facility, and for repairs and renovations to our gallery building.
Our success relies on contributions from individuals like YOU.
YOU CAN HELP make this new facility a reality!
If you are interested in contributing or making a pledge to our future campus please click below.
For additional information or assistance, contact Erin Smith, Director of Development, at
(631) 703-2959 or email development@gallerynorth.org.

Support the Cowles Café
In 2024, Gallery North received seed funding to dedicate the new café within the Terence Netter Creative Center to the memory of a beloved member of the gallery's community - Sharon Cowles. Click below to learn more.